

物件画像や図等及び記載事項が現状と異なる場合、現状を優先致します。
| 物件番号 | R16322 |
| 賃 料 条 件 |
共益費 | 駐車場 | 家賃込み | 町内会費 | -- | |
| 敷金 | 330,000円 | 礼金 | -- | 更新料 | -- | |
| 保証料 | 165,000円 | 火災保険 | 別途加入 | 仲介手数料 | 165,000円 |
| 物 件 概 要 |
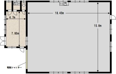
部屋の広さ | 対象階数 | 平屋建て | ||
| 構造 | 鉄骨造 | 現況 | 空室 | ||
| 入居可能日 | 相談 | 取引態様 | 仲介 | ||
| 交通 |
最寄のバス停:自衛隊正門前 (0.72Km / 徒歩10分) 最寄の駅:三本松口 (0.59Km / 徒歩8分) |
||||
| 小学校区 | 加茂小学校(1.52km / 徒歩20分) | 中学校区 | 加茂中学校(0.6km / 徒歩8分) | ||
| カ テ ゴ リ |
スタッフのススメ |
| 設 備 情 報 |
浄化槽 , エアコン2台付 , プロパンガス , |
| 備 考 |
現状貸し・事務所兼倉庫356.18㎡(115.75坪)・賃貸保証加入必要(初回保証料(賃料100%)・月額保証料(賃料1%)・更新料(賃料10%))・賃料150,000円(別途消費税)・市街化区域(第1種住居地域)・火災保険別途加入・浄化槽のメンテナンス借主負担・動力電源あり(別途契約必要)・瞬間湯沸かし器はサービス品 |
